Obiekty BIM dla rozdzielnic elektrycznych i multimedialnych
Co znajdziesz w plikach?
Parametryczne rodziny Revit
Sprawdź szeroki zakres rozdzielnic podtynkowych, natynkowych i stojących do różnych zastosowań. Już teraz dodawaj rozdzielnice takie jak volta, golf, vega, czy FWU/FWB do Twoich projektów Revit. Każda z rodzin jest parametryczna, dzięki czemu pobierając jeden plik, masz dostęp do wszystkich dostępnych na rynku polskim referencji z danego zakresu produktowego. Dodatkowo każdą z rozdzielnic możesz indywidualnie dostosować za pomocą dedykowanych parametrów.

Przejrzyste parametry

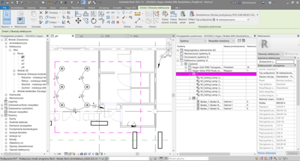
Połączenia elektryczne

Przestrzeń robocza

Obejrzyj nagranie webinaru
Dowiedz się, jak zbudowane są parametryczne rodziny dla rozdzielnic Hager oraz jak dodawać je do Twoich projektów Revit.
Obejrzyj nagranie webinaru
Tworzenie wielopoziomowych obwodów elektrycznych - konfiguracja i opisywanie rozdzielnic.
- Konfiguracja niezbędnych parametrów umożliwiających tworzenie obwodów elektrycznych.
- Dodawanie urządzeń, ustawienia oraz edycja.
- Omówienie różnych aspektów sprawdzania kolizji urządzeń elektrycznych.
- Definiowanie oznaczeń i etykietowanie elementów instalacji elektrycznej.